Home
© 2010 Sophia Klees | designed by ®autarg
DATSCHA 2020

Ausführungsplanung | Teamwork

 

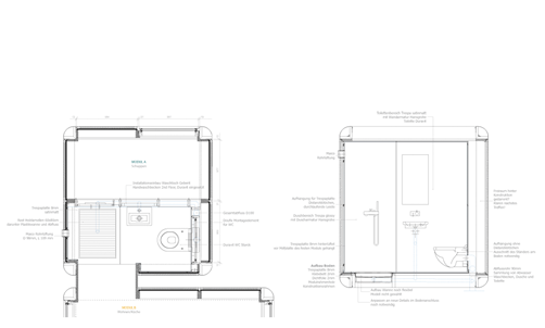
Die Datscha ist eine temporäre Behausung für die warme Jahreszeit bei der die Modularität im Vordergrund steht.

 

Ausgangspunkt ist ein Modul, das einen Geräteschuppen und eine Badzelle mit WC, Waschbecken und Duschmöglichkeit bietet. Als erste Anschaffung erfüllt dieses Element die grundlegenden Funktionen für einen Gartennutzer und kann durch weitere Module komfortabel erweitert werden.